Measured Surveys
Accurate floor plans, elevations and site layouts.
General Information
We provide accurate and reliable measured surveys to support property professionals, owners, and occupiers in understanding their buildings and sites.
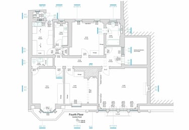
A measured survey captures precise dimensions and layouts, producing detailed drawings that reflect the property as it actually exists. These can include floor plans, elevations and site layouts, tailored to the level of detail required.
Our surveys are an essential foundation for:
Lease and space planning
Refurbishment, redevelopment, or fit-out projects
Facilities and estate management
Legal and compliance purposes
Using the latest surveying technology alongside traditional methods, we ensure measurements are thorough, consistent, and fit for purpose. The result is clear, scaled documentation that provides a reliable base for design, planning, and decision-making.
Whether for a single property or a complex portfolio, our measured surveys give clients the confidence to move forward with their projects efficiently and without risk of costly inaccuracies.


For more information on measured surveys
Measured Survey Guide
For more information on how we inspect and measure a property, see below the RICS guide 'Measured Surveys of Land, Buildings and Utilities'.
Chartered Building Surveying firm based in the North West of England. Regulated by the RICS.
Contact
About
info@northwestbuildingsurveying.co.uk
+44 7535 139 143
North West Building Surveying is a trading name of North West Building Surveying Ltd. Registered in England and Wales. Company no. 16611876
© 2025. All rights reserved.




